Past Projects

Selected Jetsen scopes across counters, fabrication, and full kitchen supply.

Reference examples for hospitality, institutional, and commercial users looking for a practical one-stop supplier.

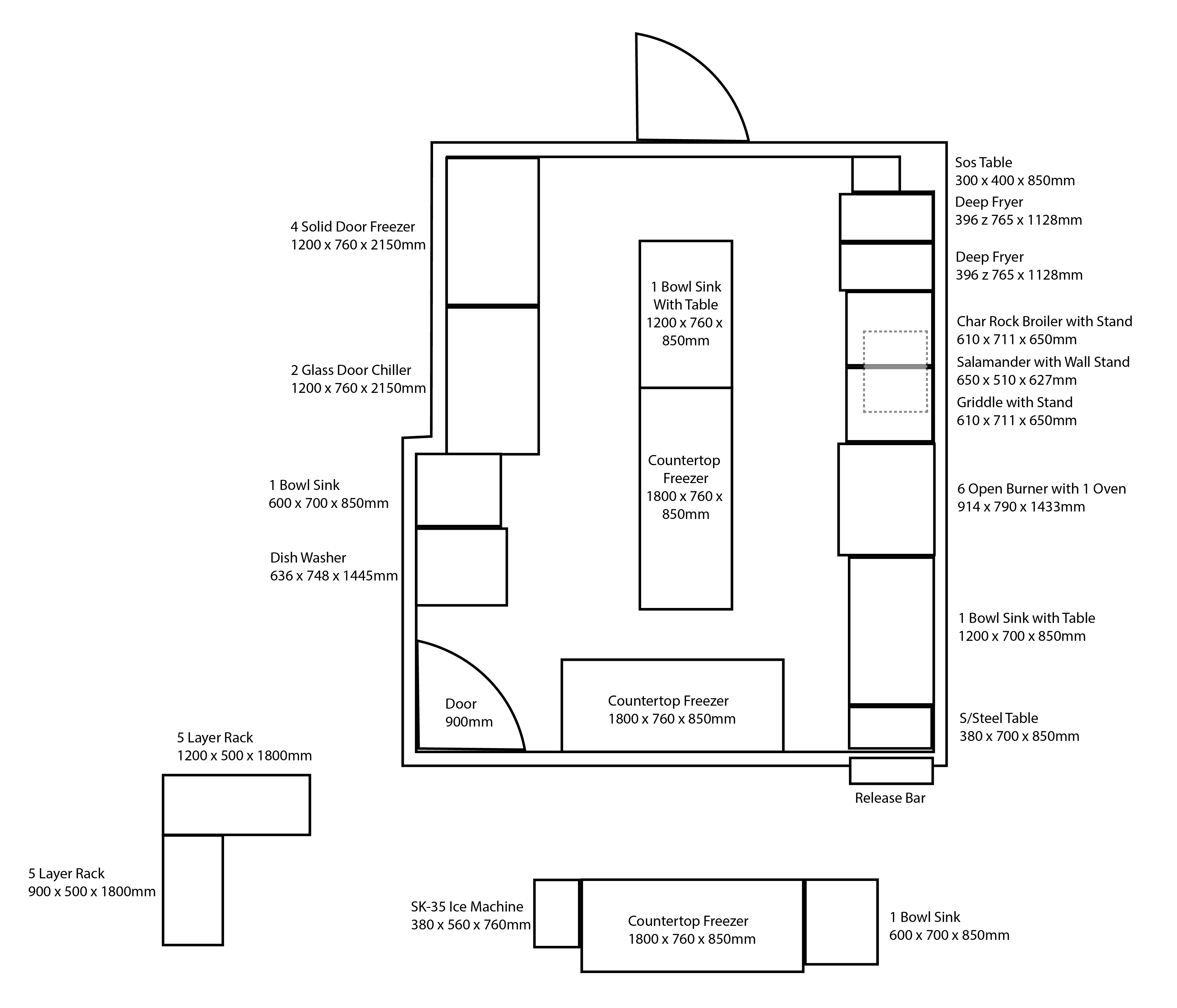
Hot Kitchen Line Coordination
Back Kitchen Kota Kinabalu

Hot Kitchen Line Coordination

Hospitality group / Kota Kinabalu

Layout-driven supply for core cooking, preparation, and workflow zones across a commercial hot kitchen package.

Hot Kitchen Line Coordination Hot Kitchen Line Coordination
Premium Water Bar Counter Setup
Water Bar Bandar Seri Begawan

Premium Water Bar Counter Setup

Boutique hotel operator / Bandar Seri Begawan

Custom stainless water bar counter package with undercounter workflow support and service-ready finishing.

Premium Water Bar Counter Setup Premium Water Bar Counter Setup
Custom Stainless Preparation Suite
Fabrication Miri

Custom Stainless Preparation Suite

Healthcare canteen operator / Miri

Fabrication tables, shelving, and utility support pieces specified for cleanability, service efficiency, and heavy daily use.

Custom Stainless Preparation Suite Custom Stainless Preparation Suite